آموزش ترسیم نقشه های فاز دو اجرایی
راهنمای تهیه و ارائه نقشه های معماری اجرایی (فاز ۲) PDF
ترسیم نقشه های فاز دو اجرایی، قلب تپنده هر پروژه ساختمانی است که جزئیات فنی و اطلاعات دقیق مورد نیاز برای اجرای صحیح و بدون نقص را فراهم می کند. این نقشه ها، شامل تمامی مشخصات ساختاری، مصالح، ابعاد و سیستم های تأسیساتی بوده و به عنوان یک راهنمای جامع و فنی برای مهندسین، پیمانکاران و کارگران در طول فرایند ساخت و ساز عمل می کنند.
در دنیای ساخت و ساز مدرن، جایی که دقت و هماهنگی حرف اول را می زند، نقشه های فاز دو اجرایی ستون فقرات هر پروژه به شمار می آیند. این نقشه ها، که پس از تأیید طرح های اولیه (فاز یک معماری) تهیه می شوند، پل ارتباطی بین ایده طراحی و واقعیت اجرایی هستند. آن ها فراتر از یک طرح کلی، به تمام جزئیات ریز و درشت یک ساختمان می پردازند و مسیر را برای تبدیل یک کانسپت به یک سازه فیزیکی هموار می سازند. هدف اصلی ازاین مقاله، ارائه یک راهنمای کامل و بی ابهام است که تمامی دست اندرکاران پروژه، از مهندس معمار و سازه گرفته تا پیمانکار و کارگران اجرایی، بتوانند با اتکا به آن، عملیات ساخت را با بالاترین کیفیت و کمترین خطا پیش ببرند.
برای یک مهندس معمار، تسلط بر ترسیم نقشه های فاز دو اجرایی یک مهارت حیاتی است. این مهارت نه تنها شامل دانش فنی عمیق در مورد مصالح، استانداردها و مقررات ملی ساختمان می شود، بلکه نیازمند توانایی استفاده از نرم افزارهای پیشرفته نقشه کشی مانند اتوکد و رویت نیز هست. نقشه های اجرایی باید به گونه ای دقیق و جامع باشند که هیچ ابهامی برای تیم اجرایی باقی نگذارند و تمامی اطلاعات لازم برای ساخت، از جمله نوع پی ها، ابعاد ستون ها، مسیر لوله ها، جنس دیوارها، دیتیل در و پنجره ها و محل استقرار تأسیسات برقی و مکانیکی را در بر گیرند.
در ادامه این مقاله، به بررسی ابعاد مختلف تهیه و ارائه نقشه های فاز دو اجرایی می پردازیم، از اهمیت هماهنگی بین رشته های مختلف مهندسی گرفته تا جزئیات مربوط به نقشه های محوطه و منابع آموزشی موجود برای دانشجویان و متخصصان. هدف ما ارائه یک دیدگاه جامع و کاربردی است تا شما بتوانید با آگاهی کامل، وارد این حوزه تخصصی شوید و نقشه هایی با کیفیت بالا و مطابق با استانداردهای روز دنیا تولید کنید.
جامع ترین کتاب آموزش فاز 2 معماری (راهنمای 0 تا 100)
آموزش فاز 2 معماری همواره یکی از چالش برانگیزترین مراحل برای دانشجویان، هنرجویان و حتی مهندسین باتجربه بوده است. پیچیدگی و وسعت جزئیات اجرایی در این فاز، نیاز به منابع آموزشی جامع و کاربردی را بیش از پیش نمایان می کند. یک کتاب آموزش فاز 2 معماری که بتواند از صفر تا صد فرآیند تهیه نقشه های اجرایی را پوشش دهد، گنجینه ای ارزشمند برای هر علاقه مند به این حوزه محسوب می شود.
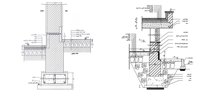
این گونه کتاب ها معمولاً با تشریح مفاهیم پایه آغاز شده و سپس به تدریج به مباحث پیشرفته تر نظیر هماهنگی نقشه های معماری با سازه و تأسیسات می پردازند. پس از تصویب نقشه های فاز یک معماری، مهندس معمار با در نظر گرفتن کلیه ضوابط و مقررات ملی ساختمان، نسبت به تهیه نقشه های فاز دو اقدام می کند. این نقشه ها باید تمامی اطلاعات مربوط به استراکچر و جزئیات اجرایی را در بر گیرند.
اطلاعاتی نظیر نوع پی ها، اندازه ستون ها، مسیر لوله ها، جنس دیوارها، مصالح کف سازی، جنس و دیتیل درها و پنجره ها، و محل استقرار لامپ ها و تجهیزات، همگی از جمله موارد کلیدی هستند که در نقشه های فاز دو تبیین می شوند. یک کتاب جامع، با ارائه چک لیست ها و نمونه های واقعی، به کاربران کمک می کند تا نقشه هایی بدون نقص و قابل اجرا تهیه کنند. این منابع آموزشی غالباً بر اهمیت هماهنگی کامل بین نقشه های معماری، سازه و تأسیسات تأکید دارند تا از بروز تداخلات و مشکلات اجرایی در آینده جلوگیری شود.
مشخصات کتاب آموزش فاز 2 معماری
کتاب های آموزش نقشه کشی سازه با AutoCAD معمولاً با هدف ارائه یک راهنمای گام به گام برای ترسیم نقشه های اجرایی طراحی می شوند. این منابع، با پوشش دادن تمامی ابعاد لازم، از مفاهیم تئوری تا کاربردهای عملی، به خواننده کمک می کنند تا درک عمیقی از این فاز حیاتی پیدا کند. مشخصات فنی این کتاب ها اغلب شامل تعداد صفحات، فرمت ارائه (معمولاً PDF برای دسترسی آسان) و حجم فایل است که نشان دهنده میزان جامعیت و جزئیات محتوای آن هاست.
به عنوان مثال، یک کتاب آموزش فاز دو معماری می تواند دارای حدود 30 تا 50 صفحه باشد و در فرمت PDF با حجمی در حدود 3 تا 5 مگابایت ارائه شود. این حجم، امکان گنجاندن توضیحات کافی، تصاویر، نقشه های نمونه و چک لیست های کاربردی را فراهم می آورد. محتوای این کتاب ها بر روی مفاهیم کلیدی مانند نحوه نمایش جزئیات اجرایی، مشخصات فنی مصالح، رعایت استانداردهای نقشه کشی و هماهنگی با دیگر نقشه های تخصصی تمرکز دارد. هدف نهایی این است که خواننده پس از مطالعه، قادر به ترسیم نقشه های اجرایی دقیق و کاربردی برای هر پروژه ساختمانی باشد.

نقشه فاز 2 محوطه (سایت پلان)
نقشه فاز 2 محوطه، که اغلب به آن سایت پلان اجرایی نیز گفته می شود، یکی از اجزای حیاتی نقشه های فاز دو است که به برنامه ریزی و اجرای دقیق فضای بیرونی یک پروژه می پردازد. این نقشه فراتر از یک طرح اولیه، شامل تمامی جزئیات فنی و اجرایی مورد نیاز برای پیاده سازی محوطه است. دقت در ترسیم سایت پلان اجرایی، تضمین کننده هماهنگی ساختمان با محیط پیرامون و کارایی فضاهای بیرونی است.
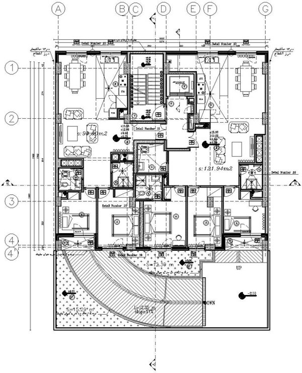
یک نقشه فاز 2 محوطه کامل شامل اطلاعاتی نظیر علامت شمال جغرافیایی، موقعیت دقیق استقرار ساختمان ها و سازه های جانبی در زمین، موقعیت خیابان ها و مسیرهای دسترسی، محل های توقف خودروها و پارکینگ ها است. همچنین، خطوط اصلی طرح معماری، ترازها و رقوم ارتفاعی کف تمام شده خیابان ها و محوطه، اندازه گذاری کامل ابعاد و فواصل ساختمان ها نسبت به یکدیگر و مرزهای زمین در آن درج می شود.
علاوه بر این، درج محورها و علامت مقاطع و درزهای انقطاع برای سازه های مختلف، طرح اجرایی فضای سبز شامل گونه های گیاهی، مسیرهای پیاده رو و آب نماها، جزئیات طرح محوطه از قبیل دیوارهای حائل، دسترسی های رمپ و پله، و محل دیزل ژنراتور اضطراری برق یا سایر تأسیسات خارجی نیز در این نقشه گنجانده می شود. این جزئیات دقیق، اجرای صحیح و کارآمد محوطه را تضمین می کند و از بروز مشکلات در آینده جلوگیری می نماید.
دانلود معماری
بخش دانلود معماری، محلی برای دسترسی به منابع ارزشمند و کاربردی برای دانشجویان و متخصصان این رشته است. این منابع می توانند شامل کتاب های درسی، جزوات آموزشی، استانداردها، آیین نامه ها و حتی نمونه نقشه های اجرایی باشند که همگی به ارتقاء دانش و مهارت های افراد در حوزه معماری کمک شایانی می کنند. هدف از ارائه چنین بخش هایی، تسهیل دسترسی به اطلاعات تخصصی و به روز است که ممکن است به راحتی در دسترس نباشند.
این منابع اغلب در فرمت PDF برای سهولت در مطالعه و استفاده در هر زمان و مکانی ارائه می شوند. از کتاب های پایه و مبانی هنرهای تجسمی گرفته تا راهنماهای تخصصی در زمینه طراحی و دانش فنی، همگی در این بخش ها قابل دسترسی هستند. این فایل ها به دانشجویان کمک می کنند تا در طول تحصیل و حتی پس از آن، به منابع معتبر برای یادگیری و مرجع دهی دسترسی داشته باشند.
علاوه بر کتاب ها، گاهی اوقات فایل های کاربردی مانند شرایط عمومی پیمان نیز در این بخش ها قرار می گیرند که برای مهندسین و پیمانکاران بسیار مهم هستند. این اسناد، چارچوب قانونی و قراردادی پروژه ها را مشخص می کنند و آگاهی از آن ها برای هر فعال در صنعت ساخت و ساز ضروری است. دسترسی به این گنجینه اطلاعاتی، بستر لازم برای رشد حرفه ای و تسلط بر جنبه های مختلف معماری و عمران را فراهم می آورد.
دانلود کتاب مبانی هنرهای تجسمی معماری PDF
کتاب مبانی هنرهای تجسمی در معماری، یکی از اساسی ترین منابع برای هر دانشجوی معماری و طراحی است. این کتاب به تحلیل و آموزش اصول بصری و عناصر طراحی می پردازد که پایه و اساس خلق فضاهای معماری زیبا و کاربردی را تشکیل می دهند. دانلود این کتاب در فرمت PDF، دسترسی آسان و سریع به مفاهیم کلیدی مانند نقطه، خط، سطح، حجم، رنگ، بافت، ریتم، تعادل و تناسب را فراهم می کند.
این مبانی نه تنها در ترسیم نقشه ها و اسکیس های اولیه کاربرد دارند، بلکه در درک عمیق تر فضاهای سه بعدی و تأثیر آن ها بر تجربه انسانی نیز نقش بسزایی ایفا می کنند. تسلط بر این اصول، به معماران کمک می کند تا طرح هایی خلاقانه و در عین حال منطقی و از نظر بصری جذاب ارائه دهند. این کتاب به دانشجویان کمک می کند تا زبان بصری معماری را درک کنند و آن را در پروژه های خود، از جمله در فاز دو اجرایی، به کار گیرند.
دانلود کتاب طراحی (1) – هنرستان و کاردانش
کتاب طراحی (1) ویژه هنرستان ها و مراکز کاردانش، یک منبع مهم برای دانش آموزانی است که تازه وارد دنیای طراحی و معماری می شوند. این کتاب، مفاهیم پایه طراحی و نقشه کشی را به زبانی ساده و کاربردی آموزش می دهد و به عنوان سنگ بنای یادگیری های تخصصی تر در آینده عمل می کند. دانلود این کتاب، به هنرجویان کمک می کند تا با اصول اولیه طراحی، ابزارهای نقشه کشی و ترسیمات پایه آشنا شوند.
محتوای این کتاب معمولاً شامل مباحثی مانند پرسپکتیو، سایه زنی، ترکیب بندی، و آشنایی با نرم افزارهای اولیه نقشه کشی است. این دانش برای ورود به فازهای پیشرفته تر معماری، از جمله ترسیم نقشه های فاز دو اجرایی، ضروری است؛ چرا که مهارت های دستی و درک فضایی قوی، مکمل مهارت های نرم افزاری هستند. این کتاب با تمرینات عملی، به تقویت خلاقیت و دقت در ترسیمات کمک می کند و بستری محکم برای ادامه تحصیل در رشته معماری فراهم می آورد.
دانلود رایگان کتاب دانش فنی پایه دهم – معماری داخلی PDF
کتاب دانش فنی پایه دهم در رشته معماری داخلی، منبعی ارزشمند برای دانش آموزان و علاقه مندان به این حوزه است. این کتاب به مبانی و اصول اولیه معماری داخلی می پردازد و دانش پایه لازم برای درک این تخصص را فراهم می آورد. دانلود رایگان این کتاب در فرمت PDF، فرصتی عالی برای آشنایی با مفاهیم کلیدی طراحی داخلی، مصالح، نورپردازی و رنگ شناسی در فضاهای داخلی است.
محتوای این کتاب به دانش آموزان کمک می کند تا درک بهتری از چگونگی تأثیر عناصر داخلی بر کیفیت فضا و تجربه کاربران پیدا کنند. این دانش، هرچند به ظاهر در فاز دو اجرایی معماری ساختمان مستقیماً دخیل نیست، اما در واقعیت، جزئیات طراحی داخلی نقش مهمی در تکمیل نقشه های اجرایی دارند. برای مثال، تعیین محل دقیق تجهیزات، نوع کفپوش ها و پوشش های دیوار، همگی باید در نقشه های فاز دو معماری لحاظ شوند و دانش فنی پایه در این زمینه، به ترسیم دقیق تر این جزئیات کمک می کند.
دانلود PDF شرایط عمومی پیمان + فایل Word تایپ شده
شرایط عمومی پیمان، یک سند حقوقی و قراردادی بسیار مهم در صنعت ساخت و ساز است که چارچوب کلی روابط بین کارفرما و پیمانکار را مشخص می کند. این سند شامل کلیه تعهدات، حقوق، مسئولیت ها و شرایط عمومی اجرای پروژه های عمرانی و ساختمانی است. دانلود فایل PDF و نسخه Word تایپ شده این سند، برای تمامی مهندسین، پیمانکاران، مشاوران و دانشجویان رشته های مرتبط با ساختمان ضروری است.
آگاهی کامل از مفاد شرایط عمومی پیمان، به پیشگیری از اختلافات احتمالی در طول پروژه کمک می کند و تضمین کننده اجرای صحیح و قانونی قراردادهاست. این سند شامل مواردی نظیر نحوه پرداخت ها، تعدیل قیمت ها، فسخ قرارداد، حل اختلافات و مسئولیت های طرفین است. برای یک مهندس معمار که نقشه های فاز دو اجرایی را تهیه می کند، درک این شرایط اهمیت بالایی دارد؛ زیرا نقشه ها باید منطبق با الزامات قراردادی و قانونی باشند تا در مرحله اجرا مشکلی پیش نیاید.
نقشه های فاز دو اجرایی، قلب تپنده هر پروژه ساختمانی هستند که جزئیات فنی و اطلاعات دقیق مورد نیاز برای اجرای صحیح و بدون نقص را فراهم می کنند.
دانشجویان معماری
دانشجویان معماری، آینده سازان صنعت ساختمان و طراحی هستند و آموزش صحیح و جامع آن ها از اهمیت بالایی برخوردار است. مسیر یادگیری در رشته معماری، از مفاهیم پایه طراحی و تاریخ هنر آغاز شده و به تدریج به مباحث تخصصی تر مانند سازه، تأسیسات و به ویژه نقشه کشی فاز دو اجرایی می رسد. برای دانشجویان، تسلط بر ترسیم نقشه های اجرایی، یک پل ارتباطی حیاتی بین تئوری و عمل است.
دانشگاه ها و مؤسسات آموزشی، نقش مهمی در آماده سازی دانشجویان برای ورود به بازار کار ایفا می کنند. این آماده سازی شامل آموزش نرم افزارهای تخصصی نظیر اتوکد، رویت و آرشیکد، آشنایی با ضوابط و مقررات ملی ساختمان و همچنین توانایی هماهنگی بین نقشه های مختلف است. دانشجویان باید بیاموزند که چگونه یک ایده طراحی را به مجموعه ای از نقشه های فنی و قابل اجرا تبدیل کنند که مورد استفاده پیمانکاران و تیم های اجرایی قرار گیرد.
برای تسهیل این فرآیند، دسترسی به منابع آموزشی با کیفیت، نمونه نقشه های واقعی و کارگاه های عملی بسیار مهم است. شرکت در دوره های آموزشی تکمیلی و استفاده از کتاب های جامع، به دانشجویان کمک می کند تا دانش خود را ارتقا داده و مهارت های عملی لازم برای تهیه نقشه های فاز دو را کسب کنند. این امر آن ها را برای چالش های واقعی پروژه های ساختمانی آماده می سازد و به آن ها امکان می دهد تا پس از فارغ التحصیلی، به سرعت وارد بازار کار شوند.
آخرین پروژه های معماران ایرانی
بررسی آخرین پروژه های معماران ایرانی، نه تنها منبع الهام بخش بزرگی برای دانشجویان و متخصصان است، بلکه فرصتی برای درک چگونگی تبدیل ایده های طراحی به واقعیت اجرایی فراهم می کند. این پروژه ها، نمایانگر نوآوری، خلاقیت و توانمندی های فنی معماران کشورمان در مواجهه با چالش های مختلف طراحی و ساخت هستند. مطالعه این پروژه ها به درک عمیق تر فرآیند طراحی و اجرای معماری کمک می کند.
از دیدگاه ترسیم نقشه های فاز دو اجرایی، هر پروژه موفق، نتیجه مجموعه ای از نقشه های دقیق و هماهنگ است. با بررسی این پروژه ها، می توان به این نکته پی برد که چگونه جزئیات اجرایی، انتخاب مصالح و سیستم های فنی در طرح نهایی تأثیرگذار بوده اند. این بررسی شامل تحلیل پلان ها، نماها، برش ها و جزئیات خاص هر پروژه است که نشان دهنده دقت معماران در فاز دو است.
این بخش به دانشجویان و معماران جوان کمک می کند تا با نمونه های واقعی و کاربردی نقشه های فاز دو آشنا شوند و ببینند که چگونه مفاهیم تئوری در پروژه های واقعی پیاده سازی می شوند. همچنین، این پروژه ها می توانند راهنمایی برای بهبود مهارت های نقشه کشی و درک بهتر از استانداردهای اجرایی باشند. مشاهده نتایج نهایی کار معماران برجسته، انگیزه لازم برای یادگیری بیشتر و تلاش برای تولید نقشه های اجرایی با کیفیت بالا را فراهم می آورد.

مطالب طراحی داخلی
مطالب طراحی داخلی، بخش جدایی ناپذیری از حوزه معماری هستند و تأثیر بسزایی در کیفیت نهایی فضاهای ساخته شده دارند. اگرچه طراحی داخلی به طور مستقیم به سازه یا تأسیسات اصلی ساختمان مربوط نمی شود، اما جزئیات آن در نهایت باید در نقشه های فاز دو معماری لحاظ شوند تا اجرای صحیحی داشته باشند. این ارتباط متقابل، اهمیت درک عمیق از طراحی داخلی را برای هر معمار و نقشه کش فاز دو برجسته می کند.
مطالعه مقالات و کتاب های مربوط به طراحی داخلی، به معماران کمک می کند تا با جدیدترین روندها، مصالح، رنگ ها و چیدمان ها آشنا شوند. این دانش، در ترسیم نقشه های اجرایی، به ویژه در بخش هایی مانند پلان مبلمان، جزئیات دیوارپوش ها، کفپوش ها، سقف های کاذب و نورپردازی، بسیار کاربردی است. هر یک از این عناصر، نیازمند جزئیات دقیق در نقشه های فاز دو هستند تا پیمانکاران بتوانند آن ها را به درستی اجرا کنند.
برای مثال، محل دقیق کلید و پریزها، نوع و ابعاد کابینت ها، دیتیل نصب کمد دیواری ها و حتی جزئیات مربوط به تزئینات داخلی، همگی باید در نقشه های فاز دو اجرایی قید شوند. بنابراین، تسلط بر مطالب طراحی داخلی، به معمار امکان می دهد تا نقشه هایی جامع تر و کاربردی تر ارائه دهد که نیازهای زیبایی شناختی و عملکردی فضا را به طور همزمان پوشش دهد و در نهایت به خلق یک فضای مطلوب منجر شود.
تسلط بر ترسیم نقشه های فاز دو اجرایی، یک مهارت حیاتی برای هر مهندس معمار است که شامل دانش فنی عمیق و توانایی استفاده از نرم افزارهای پیشرفته مانند اتوکد و رویت می شود.
سوالات متداول
نقشه فاز دو اجرایی چیست؟
نقشه فاز دو اجرایی، مجموعه ای از نقشه های فنی و دقیق است که تمامی جزئیات لازم برای ساخت و پیاده سازی یک پروژه ساختمانی را شامل می شود. این نقشه ها، اطلاعاتی مانند ابعاد دقیق، مشخصات مصالح، جزئیات سازه ای و تأسیساتی را ارائه می دهند و راهنمای اصلی تیم اجرایی در کارگاه هستند.
تفاوت نقشه فاز یک و فاز دو معماری در چیست؟
نقشه فاز یک معماری، طرح های اولیه و کانسپچوال یک پروژه هستند که بیشتر به ایده های طراحی، ارتباط فضاها و زیبایی شناسی می پردازند. در مقابل، نقشه های فاز دو اجرایی، بر جزئیات فنی، ابعاد دقیق، مشخصات مصالح و نحوه اجرای دقیق تمامی عناصر ساختمان تمرکز دارند و برای ساخت و ساز مستقیم مورد استفاده قرار می گیرند.
هدف از ترسیم نقشه های فاز دو اجرایی چیست؟
هدف اصلی از ترسیم نقشه های فاز دو اجرایی، ارائه یک راهنمای جامع و بدون ابهام برای تیم اجرایی در کارگاه است. این نقشه ها، تضمین کننده اجرای صحیح، دقیق و مطابق با استانداردها و مقررات ملی ساختمان هستند و از بروز خطاها و مشکلات در طول فرآیند ساخت و ساز جلوگیری می کنند.
مراحل تهیه نقشه فاز دو معماری کدامند؟
مراحل تهیه نقشه فاز دو معماری شامل موارد متعددی است. این فرآیند با تصویب نهایی نقشه های فاز یک آغاز می شود. سپس، با هماهنگی کامل نقشه های معماری با نقشه های سازه و تأسیسات (برقی، مکانیکی، بهداشتی)، جزئیات اجرایی شامل پلان ها، نماها، برش ها، جزئیات اجرایی درها و پنجره ها، مصالح، و تمامی دیتیل های لازم برای ساخت و ساز دقیق و مطابق با ضوابط و مقررات ملی ساختمان ترسیم و تکمیل می شوند.
کدام نرم افزارها برای ترسیم نقشه فاز دو استفاده می شوند؟
برای ترسیم نقشه های فاز دو اجرایی، نرم افزارهای متعددی استفاده می شوند که هر یک قابلیت های خاص خود را دارند. از جمله مهم ترین و پرکاربردترین این نرم افزارها می توان به اتوکد (AutoCAD) به عنوان استاندارد صنعتی برای نقشه کشی دوبعدی، و رویت (Revit) برای مدل سازی اطلاعات ساختمان (BIM) و تولید نقشه های سه بعدی و اجرایی اشاره کرد. آرشیکد (ArchiCAD) و نرم افزارهای مشابه نیز در این زمینه کاربرد دارند.
یک نقشه فاز دو کامل شامل چه جزئیاتی است؟
یک نقشه فاز دو کامل شامل پلان های معماری (پلان طبقات، پلان بام، پلان مبلمان)، نماهای چهارگانه، برش های طولی و عرضی از ساختمان، جزئیات اجرایی درها و پنجره ها، جزئیات مربوط به پله ها، سقف های کاذب، کف سازی ها، دیوارهای داخلی و خارجی و همچنین هماهنگی با نقشه های سازه و تأسیسات مکانیکی و برقی است. تمامی ابعاد، مصالح و مشخصات فنی نیز در آن قید می شود.
نقشه فاز دو اجرایی برای چه کسانی کاربرد دارد؟
نقشه فاز دو اجرایی برای طیف وسیعی از افراد و گروه ها در صنعت ساخت و ساز کاربرد دارد. این نقشه ها در درجه اول برای مهندسین معمار، مهندسین سازه، مهندسین تأسیسات و پیمانکاران اصلی و جزء ضروری هستند. همچنین، ناظران پروژه، مجریان، کارگران ساختمانی و حتی کارفرمایان نیز برای نظارت و کنترل پیشرفت کار از این نقشه ها استفاده می کنند.